
Neubauprojekt
Herausragende Wohnqualität
auf ca. 129 m² Fläche
Helle Räume, elegante Architektursprache und ein durchdachtes Raumkonzept, gemütliche Gartengrundstücke und eine schonende Heizungslösung. All das charakterisiert Ihre neue Gartenterasse. Erfüllen Sie sich Ihren Traum von den eigenen 4 Wänden in einer der beliebtesten Wohnlagen in ganz Paderborn.


Umgebung und Wohnen
Umgeben von Feldern und
Wäldern – Willkommen in Wewer
Wewer, mit rund 7.000 Einwohnern, bietet ideale Voraussetzungen für Ihr neues Zuhause. Der charmante Stadtteil überzeugt durch eine gut ausgebaute Infrastruktur mit attraktiven Einzelhandelsgeschäften, Nahversorgern, Tankstellen und einer ausgewählten Gastronomie – alles bequem und schnell erreichbar.
Besonders hervorzuheben ist die idyllische Umgebung rund um Wewer und das Gut Warthe. Ein gut ausgebautes Wegenetz lädt zu entspannten Spaziergängen, abwechslungsreichen Fahrradtouren und vielfältigen Freizeitaktivitäten ein.
Hier genießen Sie Natur pur und eine hohe Lebensqualität – perfekt für alle, die eine aktive und zugleich entspannte Lebensweise in unmittelbarer Nähe zu ihrem Zuhause schätzen.
Paderborn Wewer
Willkommen in Ihrem
neuen Zuhause







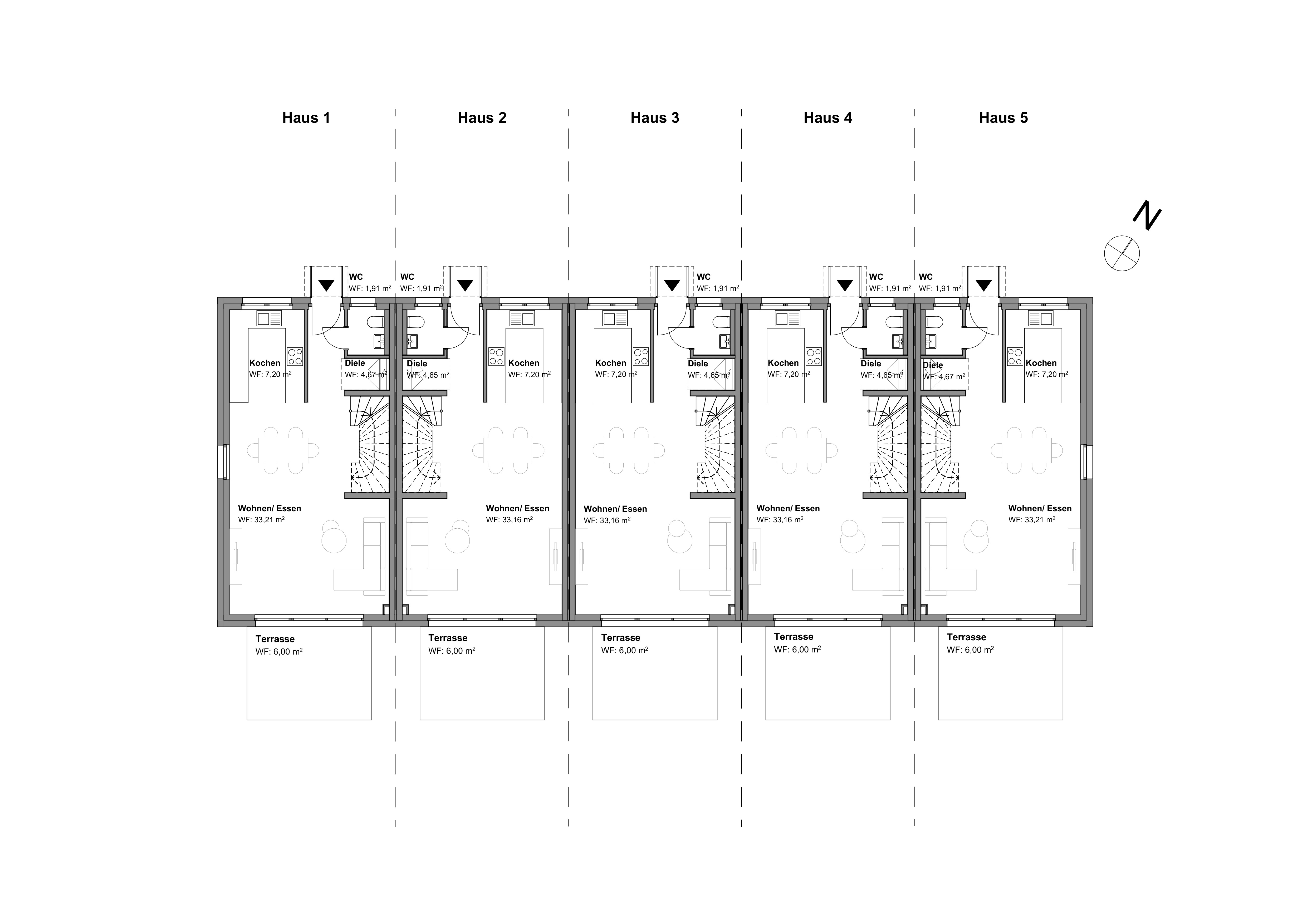
Erdgeschoss

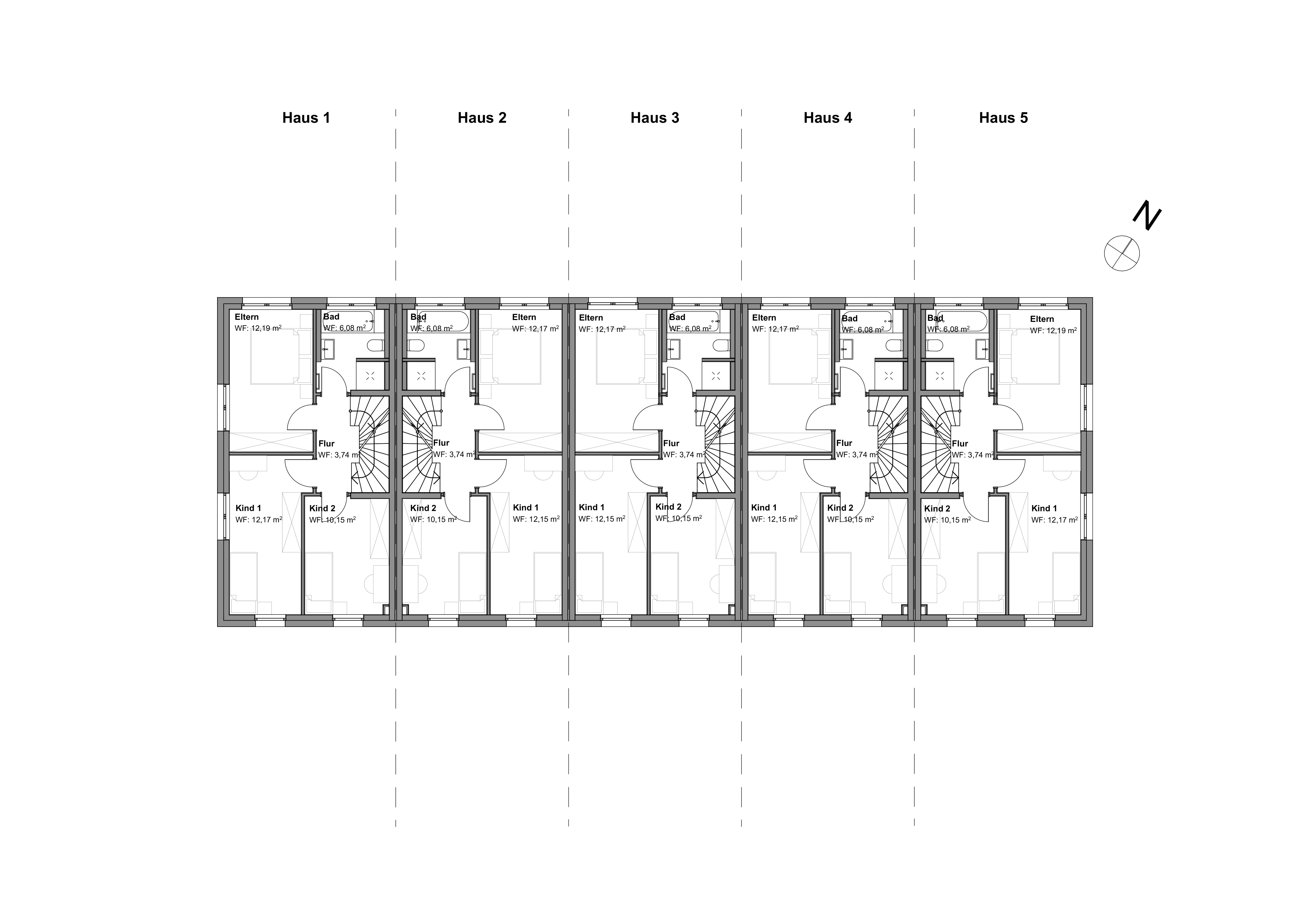
1. Obergeschoss

2. Obergeschoss

IHR ZUHAUSE. UNSERE VERANTWORTUNG.
Was wir Ihnen bieten
und gewährleisten:
„Gemeinsam bauen. Besser bauen“
Wir freuen uns über Ihr Interesse und stehen Ihnen gern persönlich zur Verfügung.
Telefon: 05292 9862-0 | Mail: info@wegener.de

